• 全民古玩网瓷器、玉器、古币、银元、字画、文玩杂项、博物馆馆藏、古董收藏、古玩收藏

海外资讯丨柏林洪堡论坛:不(只)是博物馆

  • 上海博物馆
  • 2021年12月01日03时



上海博物馆微信推出海外资讯栏目,将关注国际文博机构及专家学者对博物馆管理、运营、科技、文保、展览等方面的创意创新和经验总结,以思考、启发、想象博物馆的未来发展和前进道路。



2021年7月, 一座文化综合体“洪堡论坛”在德国柏林城市宫正式对外开放。柏林为何要建设这座宫殿中博物馆?本文通过四个部分,回顾洪堡论坛从诞生到开放的历程,并简要介绍其组织方式与开放策略。



左右滑动欣赏洪堡论坛外景


位于城市历史中心的洪堡论坛和博物馆岛

Stiftung Preuischer Kulturbesitz, ART+COM


01 缘起


新建于德国首都菩提树下大街的洪堡论坛,其前身是15至19世纪逐步建造而成的一座长方形平面的城市宫殿。二战后,和柏林许多受损严重的建筑一样,城市宫被民主德国彻底拆除。原址上新建的共和国宫成为柏林新的政治中心。


两德统一后,共和国宫受到冷落。2002年,拆除共和国宫、重建城市宫的决议在联邦议会顺利通过。重建方案保持了宫殿巴洛克风格的外观(除东侧一面未复原)与原有的视觉体量,并赋予其公共文化建筑的属性。西侧露天庭院改为室内空间,成为论坛的主要接待大厅,以满足开放的实际需要。2013年开工后,重建持续到2020年方才完成,又因疫情拖累了开馆的进度,当年只能线上开放。


上下滑动查看全部

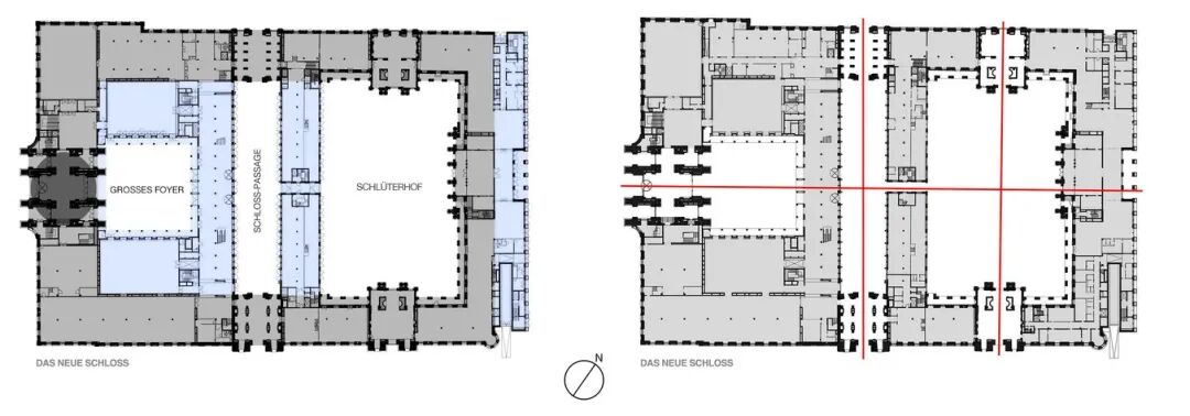
上两图:原宫殿平面图与底层主要通道

下两图:洪堡论坛平面图与底层主要通道

Franco Stella


柏林菩提树下大街,从勃兰登堡门到施普雷河的一公里,汇集了众多历史建筑。洪堡论坛是柏林博物馆岛上的最后一块拼图。这座重建的巴洛克宫殿,不仅标识出城市自中世纪以来的地理中心,也勾连起普鲁士王国、德意志帝国、一战、十一月革命、魏玛共和国、二战、民主德国等诸多历史记忆。如今,它的使命则是向来自世界各地的观众,展示欧洲以外的文化,成为容纳多种声音的论坛。


02 走进城市宫中的洪堡论坛


通过互联网访问论坛官网,你便可以巡游这座宫殿1


穿过城市宫的巴洛克宫门,进入大穹顶正下方的空间,你会发觉内外风格大为不同。迎面而来的是方正简洁的接待大厅,引导人们继续参观这座4万平米的建筑。大厅一侧,巨大的旋转显示屏提示当前展览



“可怕的美:

大象、人类、象牙”

这场与肯尼亚国家博物馆合作举办的跨学科特展,讲述了象牙与贸易的故事

痕迹——场所的历史”

一个关于城市宫本身历史的常设展。其中包括视频全景图、考古地下室和散布在各处的历史文物:例如 1990年人民议会选举时使用过的投票箱和共和国宫的灯具,还有一些巴洛克雕塑的原件

“洞察力——洪堡兄弟”

介绍洪堡兄弟的常设展

“柏林与世界”

一个关于柏林与世界关系的参与性常设展览。展览引导观众根据自己的喜好,选择不同的路线游览展厅,既能回顾过往也关照当下

“请入坐!”

儿童教育特展,主要讲述坐的文化:在不同文化中的儿童是怎么坐的?他们在家庭中的位置如何?展览为三岁以上的小观众提供了大量的探索与攀爬的空间

“自然之后”

气候变化、物种灭绝和民主危机之间有什么联系?在互动的洪堡实验室里,通过这一科普互动展,你可以自己体验科学

民族学博物馆和

亚洲艺术博物馆展厅


占据两个楼层、超过8500平方米的大型常设展,展出了近万件来自非洲、亚洲、美洲和大洋洲的展品,让柏林市中心成为名副其实的世界文化舞台。


防疫要求2

1.入馆必须出示接种证明/痊愈证明(二选一)

2.室内必须佩戴口罩

3.保持1.5米社交距离

4.馆内各处放置免洗洗手液(展厅内不得使用自行携带的消毒用品,以防损害文物)

5.提供防疫用品,如用来触摸互动展品的手套等

6.推荐非接触支付



左右滑动查看展厅内景

从左至右分别为:“请入坐!”展厅 、“柏林与世界”展厅 、“自然之后”展厅 、 亚洲艺术博物馆展厅


继续参观,你也许会同意,它确实不只是一座传统意义上的博物馆,而是一个“为了各种文化、艺术、科学、交流和论争而存在”3之处。一位观众如此评论:

这里有时尚、现代的展览,观众能参与其中,作出自己的评判。洪堡论坛的每一个展览都没有博物馆过去常见的陈腐气息,观展的门槛比较低。

然而在面对种族、殖民的议题时,说明文字中总透露出恐惧和过度防备的态度,令人不大舒服4


参观完室内展厅后,穿过南北向的过道。你可以在那里,透过四号门洞看见建成于1830年的老博物馆,它也是博物馆岛上的第一座博物馆。穿过通道继续东行,就可抵达露天庭院。


选帝侯、国王与帝王们曾在露天庭院中举行各种大型活动,如今公众可以在此观看电影、舞蹈或者参加工作坊和音乐会。当然更多的是迎面而来的汹涌人流:庭院中南北两道铁门24小时打开,使其成为城市空间与南北步行交通的一部分。


可容纳各类活动的大庭院


论坛建筑的剖面示意图

Franco Stella


03“洪堡论坛

不(只)是博物馆”


洪堡论坛总管理人多格洛(Hartmut Dorgerloh)在论坛开幕式上的这句话,是对洪堡论坛的重要注脚,可从三个层面理解这句话:


首先,它是普鲁士文化遗产基金会(管理柏林国立博物馆群5)、柏林文化项目柏林市立博物馆柏林洪堡大学联合组成的公法非盈利基金会。


论坛由一个四人领导团队负责,其中包括论坛总管理人(Generalintendant)、论坛首席研究员(由柏林市立博物馆馆长兼任)、柏林国立博物馆驻论坛馆藏馆长、柏林洪堡大学校长。总管理人主要负责论坛中各展陈活动项目的协调与管理。


洪堡论坛机构圈层图


再者,洪堡论坛位于重建后的柏林城市宫内,北侧紧邻世界文化遗产“柏林博物馆岛”。除了一个简洁的现代立面,其他三边恢复了18世纪的巴洛克外立面。意大利建筑设计师弗朗哥·斯特拉(Franco Stella)认为,宫殿经过重建,仍具有其文化遗产价值,有望成为博物馆岛世遗价值的最新组成部分6


斯特拉进一步指出,城市宫之于柏林,尤如圣马可广场之于威尼斯。没有了这座宫殿,就无法理解周边的博物馆、图书馆、军械库、教堂与大学等建筑。通过重建城市宫,柏林市中心填补了70年来的形象空缺,也连接了因两德分立而断裂的城市文脉7


最后,柏林是现代博物馆的发源地之一。城市宫与博物馆岛即为王室“珍宝室”到近代公共博物馆转变的鲜活例证。而论坛以洪堡兄弟8为名,意在彰显近代博物馆背后理性与启蒙的精神。下辖柏林国立博物馆群的普鲁士文化遗产基金会希望,柏林能够向世界展现洪堡兄弟开放的世界观与旺盛的求知欲。而基金会将欧洲藏品与非欧洲藏品整合于一处,也正是出于这一目的9

洪堡兄弟两人服务于普鲁士宫廷,都曾出入城市宫。其中哥哥是外交家、语言学家与洪堡大学的创建者;而弟弟是博物学家、自然地理学家。


可以说论坛的建立,处在德国统一后柏林城市更新与博物馆事业发展的双重背景下。论坛将推动着柏林公立博物馆藏品的集中利用,打造“一个社会文化生活的开放空间”、“一个有足够灵活性、适应各类展览的模块化建筑”、“一个以论坛为形式的柏林城市宫”,并“重新定义21世纪文化中心概念”10


04 开放相关策略


洪堡论坛有超过一成(约8000万欧元)的建设资金,来自于超过4.5万人的个人捐款。这部分资金,全部用于重建巴洛克风格的外立面。其余的5.3亿欧元和3200万欧元资金分别由联邦政府和柏林市政府承担。


洪堡论坛虽得到了德国社会的部分支持,但并不能使其免于预算超支、工期延后、工地事故等层出不穷的麻烦,更不必说对其建设必要性的质疑。在反对者看来,将殖民时代来源不明的文物藏品,送入重建后的德意志帝国的皇宫,显然是踩进了雷区。关于殖民文物返还、帝制象征物重建、管理机构效能低下的报道,更是成为了盘桓柏林当地的新闻头条的常客。


回望本世纪初,洪堡论坛在联邦议会中得到了跨党派的支持。但时过境迁,在两德统一三十年后,论坛如何促进德国正视自身的历史与未来,仍然是一个有待回答的问题。洪堡论坛因而选择直面争议,将多种策略纳入到博物馆的整体战略当中:


统一品牌形象

从始至终以“洪堡论坛”这一品牌形象出现,论坛通过官方网站www.humboldtforum.org发布各类活动与展览信息。

主导媒体曝光

自建设初期,就持续发布工地开放日、布展情况、展品动态等信息。论坛也常常聚焦于明星展品、大型文物、现代艺术的移动、运输、陈列信息,以期获得更多的正面关注。


施工中的论坛也曾多次举行工地开放日,通过开放结构完工的部分展厅、中庭和通道,配合博物馆之夜活动,向市民介绍工程进度和未来的展览信息。

公开信息和意见

2012年,在论坛工地的洪堡盒子建成,目的是为论坛树立形象,帮助传达、回应选址、建筑、殖民历史、博物馆伦理等关键争议,分享着各方的意见与立场。

论坛也预告2022年的特展,公布贝宁青铜器的展览计划。论坛同时承诺,民族学博物馆之后会将这些藏品归还给尼日利亚。


现已拆除的洪堡盒子。总面积3000平米,高28米共5层,将展览区、观景台和活动场地等融为一体。在重建完成前,它传达了洪堡论坛的项目、内容、设计和基本建筑项目方面的信息。OSRAM


从洪堡盒子上俯瞰菩提树下大街,与其尽头的勃兰登堡门。

支持创新与经验积累

“达勒姆的洪堡实验室”是洪堡论坛在柏林达勒姆地区(亚洲美术馆和民族学博物馆迁至洪堡论坛前的原址)开展的30多个策展、研讨项目的总称。实验室探索了洪堡论坛所应采取思路与方法,最终集结为《通向洪堡论坛的博物馆实验》11一书。


《通向洪堡论坛的博物馆实验》封面


2013年至2015年的实验项目横道图


洪堡盒子内的小型展览也成为论坛大型展览创意的预演场,举办了不少儿童教育展览和现当代艺术展。

管理相关方参与

邀请各方参与,完善相关方参与的方案。例如“柏林与世界”一展就公开了其社会参与方案,将本地艺术家和社区纳入展览与阐释当中。与博物馆岛以欧洲历史文物为主不同,论坛力图面向世界与未来,更关注当代的多种视角。

制定合适的门票政策

论坛决定在开放后的前一百天免费入场,之后开始收取门票。这一决定基于普鲁士文化基金会赞助的一项研究《博物馆免票政策的影响——以柏林洪堡论坛为背景》12。该研究认为,虽然免费开放能提高观众群体的多样性,但对社会弱势群体的门票减免政策(而非完全免票),将更好地帮助机构在社会效益和经济效益上取得平衡,并能避免对同一地区其他收费博物馆的挤出效应。



05 结语


随着今年9月亚洲艺术博物馆和民族学博物馆相继局部开放,如何处理论坛的核心展陈及相关文物来源、返还问题再次受到媒体的关注。可以确定的是,洪堡论坛热烈紧张的论争气息,早已是柏林城市文化中不容忽视特点。至于论坛能否取得期望中的成功,最终只能留给观众和时间来评判。





洪堡论坛建设大事记

规划阶段

2002年,德国联邦议会通过决议,重建柏林城市宫,作为洪堡论坛的场地

2006年,拆除占据原址的共和国宫

2008年,意大利建筑设计师弗朗哥·斯特拉赢得重建方案的国际建筑竞赛


施工阶段

2012年,工地旁的洪堡盒子建成,向观众持续提供信息

2013年,论坛建筑奠基

2015年,建筑结构封顶

2019年9月,原定竣工时间(亚历山大·洪堡诞辰250周年)


开放阶段

2020年12月17日,举行建筑开幕仪式,开放网上虚拟展厅

2021年6月,开放室外庭院

2021年7月20日,开馆仪式,免费开放100天

2021年9月,开放亚洲艺术博物馆和民族学博物馆

2021年10月,开放位于顶层的平台和咖啡馆

2022年,计划开放民族学博物馆的非洲展厅部分





[1]参见360.humboldtforum.org洪堡论坛的虚拟巡游页面

[2]截至2021年11月15日。详细要求和例外见www.humboldtforum.org 洪堡论坛官网

[3]参见www.humboldtforum.org洪堡论坛官网的“关于我们”页面

[4]https://www.rbb24.de/kultur/beitrag/2021/07/kommentar-eroeffnung-humboldt-forum-berlin.html柏林-勃兰登堡广播电台(rbb)官网报道

[5]参见 www.smb.museum柏林国家博物馆网站

[6]Stella, Franco. Architekturführer Berliner Museumsinsel. Humboldt-Forum. 2013. 109-116页

[7]同上

[8]洪堡兄弟两人服务于普鲁士宫廷,都曾出入城市宫。其中哥哥是外交家、语言学家与洪堡大学的创建者;而弟弟是博物学家、自然地理学家。

[9]Pazinger, Hermann. Rethinking Berlin’s Center from the Perspective of Culture – the Humboldt-Forum in the Berilner Schloss. Museum Island Berlin.2012. 393页

[10]Retting, Manfred. The Berliner Schloss turned into the Humboldt-Forum – the Perspective of the Client. Museum Island Berlin. 2012. 404页

[11]洪堡论坛开放后,洪堡实验室的信息参见https://www.humboldt-labor.de/en(英文页面)

[12]Kliment,Tibor. Der freie Eintritt im Museum: Auswirkungen auf die Publikumsgewinnung,Einnahmen und umgebenden Museen imKontext des Humboldt Forum Berlin.Institut für Museumsforschung. 2019





主要参考文献:

Reichert, Kolja. Humboldt Forum: Ein imperiales Museum, das keines sein will. Die Zeit. 2020年12月17日

https://www.zeit.de/kultur/kunst/2020-12/humboldt-forum-virtuelle-eroeffnung-berliner-stadtschloss-museum-kulturpolitik.


Hntzschel, Hntzschel. Teilerffnung des Humboldt-Forums - Kultur - SZ.de. 2021年9月26日

https://www.sueddeutsche.de/kultur/humboldt-forum-enthnologisches-museum-berlin-eroeffnung-museum-fuer-asiatische-kunst-1.5417159.


Handels , Andrea. Was Besucher:innen ab Dienstag im Kulturkoloss erwartet 2021年9月23日

https://www.rbb24.de/kultur/beitrag/2021/07/humboldt-forum-stadtschloss-berlin-eroeffnung-baukosten-debatten.html.


文中所有照片的版权,除特别标明的,皆属于洪堡论坛基金会


编译丨周序文 上海博物馆文化交流办公室








版权声明


上海博物馆(微信号:上海博物馆)发布的图文均为版权作品,仅供订阅用户阅读参考。其它网站、客户端、微信公号如需转载,请联系我们获得授权,并注明“上海博物馆”版权信息。敬谢!

联系电话:021-63723500


Copyright © 2021.Company 全民古玩网QVIP.NET All rights reserved.全民古玩网加密货币交易所